JDZW-10、JDZXW-10型戶外電壓互感器為戶外環氧樹脂澆注絕緣全封閉結構。適用于交流50Hz,額定電壓10KV及以下的電力系統中作電壓、電能測量和繼電保護用。適用于農村戶外變電站,也可適用于工業、小型企業、配電所。JDZW-10、JDZXW-10型電壓互感器為支柱式結構,采用戶外環氧樹脂全封閉澆注,具有耐電弧,耐紫外線,耐老化,壽命長等特點。由于互感器采用全封閉澆注絕緣,尺寸小,重量輕,適用于任何位置,任意方向安裝。二次出線端有接線保護罩,其下方有出線孔,并能實現防竊電措施。安全可靠,底座槽鋼上有4個安裝孔。
二、JDZ(X)W-10戶外電壓互感器 技術參數
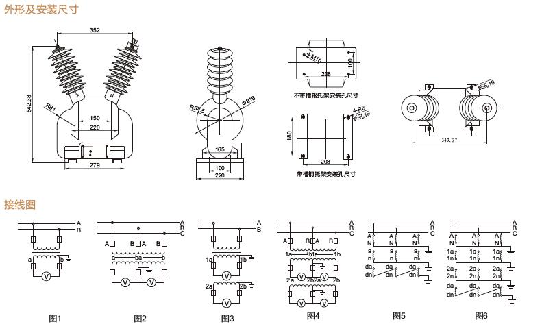
三、JDZ(X)W-10戶外電壓互感器 外形及安裝尺寸

四、JDZ(X)W-10戶外電壓互感器 接線圖
五、JDZ(X)W-10戶外電壓互感器 注意事項
1.電壓互感器在投入運行前要按照規程規定的項目進行試驗檢查。例如,測極性、連接組別、搖絕緣、核相序等。
2.電壓互感器的接線應保證其正確性,一次繞組和被測電路并聯,二次繞組應和所接的測量儀表、繼電保護裝置或自動裝置的電壓線圈并聯,同時要注意極性的正確性。
3.接在電壓互感器二次側負荷的容量應合適,接在電壓互感器二次側的負荷不應超過其額定容量,否則,會使互感器的誤差增大,難以達到測量的正確性。
4.電壓互感器二次側不允許短路。由于電壓互感器內阻抗很小,若二次回路短路時,會出現很大的電流,將損壞二次設備甚至危及人身安全。電壓互感器可以在二次側裝設熔斷器以保護其自身不因二次側短路而損壞。在可能的情況下,一次側也應裝設熔斷器以保護高壓電網不因互感器高壓繞組或引線故障危及一次系統的安全。
5.為了確保人在接觸測量儀表和繼電器時的安全,電壓互感器二次繞組必須有一點接地。因為接地后,當一次和二次繞組間的絕緣損壞時,可以防止儀表和繼電器出現高電壓危及人身安全。
6、電壓互感器副邊絕對不容許短路。
六、JDZ(X)W-10戶外電壓互感器 使用條件
1.海拔高度不超過3000米;
2.周圍環境溫度不高于+40C,不低于- 5度
3.周圍空氣的相對濕度不大于85%( 20度 ;
4.滿足II 污穢等級;
5.安裝場所無腐蝕性的氣體
6.額定絕緣水平:JDZ10-6型7.2/32/60kV 、JDZ10-10型12/42/75kV
七、JDZ(X)W-10戶外電壓互感器 選型推薦
JDZ16-3、6、10 JDZ(X)-10 JDZW-10R JDZ(X)10-3、6、10A1(G)
JDZX9-35 JDZW-20R JDZW-10R JDZW3-3、6、10
JDZXW-35 JDZ16-3、6、10 JDZ(X)W-35(G) JDZ(J)-3、6、10Q
JDZX10-3、6、10 JDZ10-3、6、10A1 JDZX9-3、6-10Q(G) JDZX9-3、6-10Q
JDZX18-3、6、10R1 JDZ(X)11-15、20(G) JDZZW-10 JDZZW-10
JDZ(X)10-3、6、10A1(G) JDZ(X)W-10 JDZW-20R JDZW3-3、6、10 JDZXW-35
八、浙江中拓高壓戶外電流互感器公司簡介
浙江中拓高壓電器有限公司是一家主要從事研發、生產銷售110kV及以下戶內外高低壓互感器,鐵芯、絕緣件的專業廠家。公司的10-35kV戶內外互感器,銷遍全國各地,遠銷海外多個國家和地區,深受廣大用戶信賴和好評,10kV真空斷路器用互感器已成為國內柱上開關生產企業最優選擇合作單位。2007年自主研發的主推產品LZW32-10(12)型戶外保護用電流互感器,是目前國內同類型配套互感器主要生產商。聯系電話:13868715829,商務QQ:40378900,歡迎來電咨詢定制。